freelance work


sydney residential joinery

2025

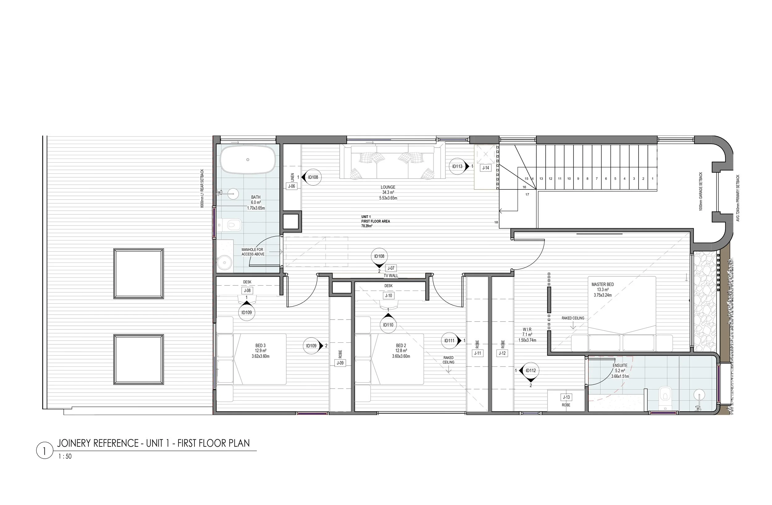
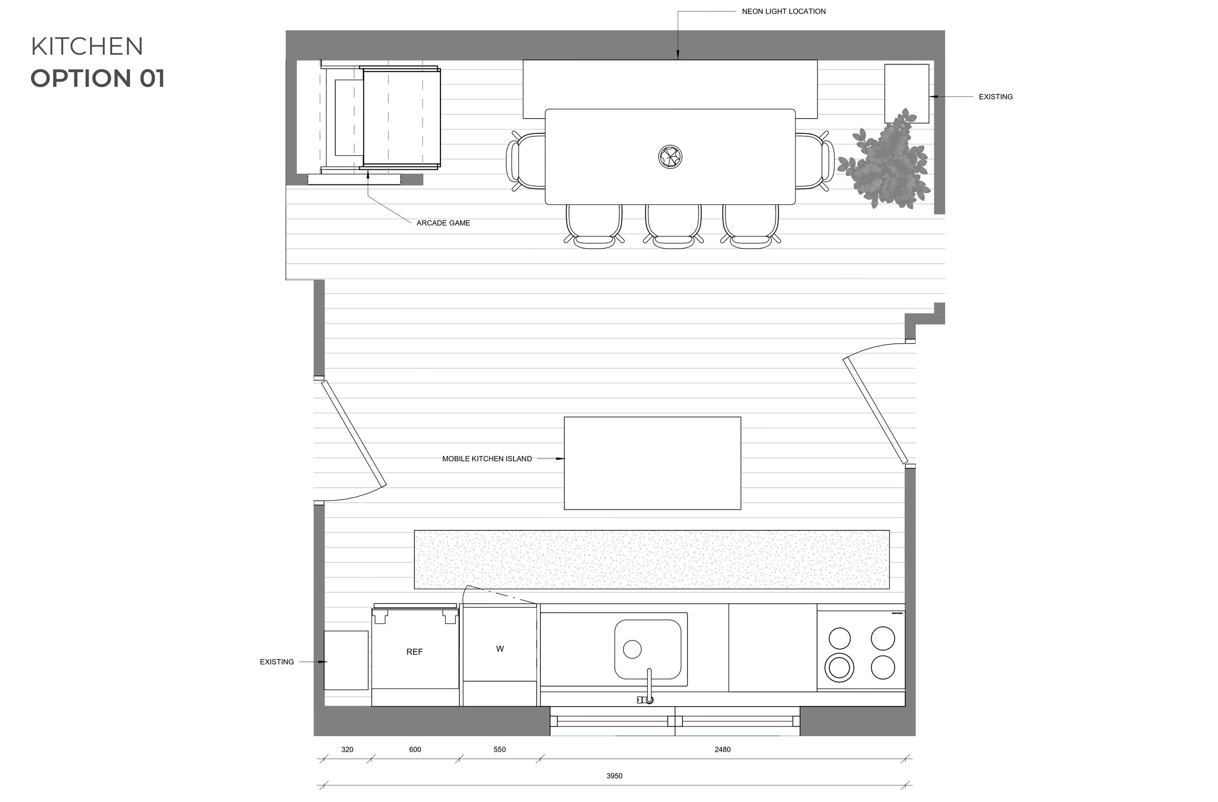
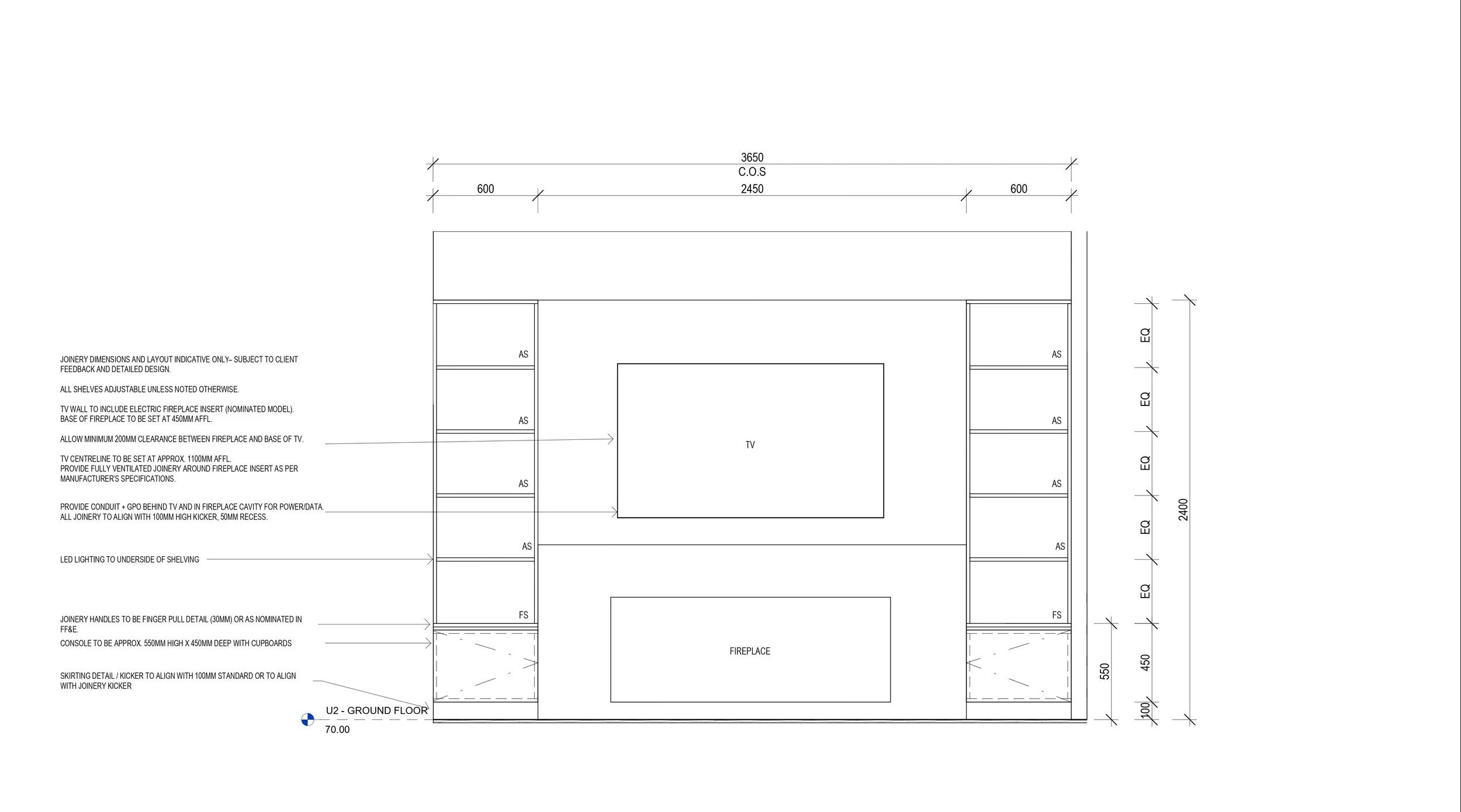
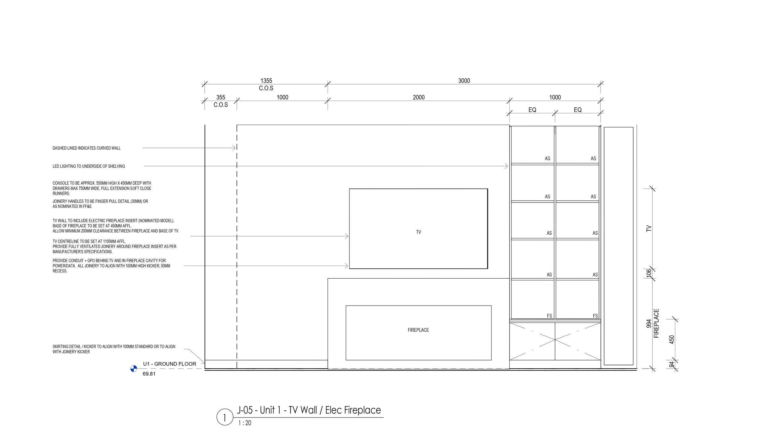
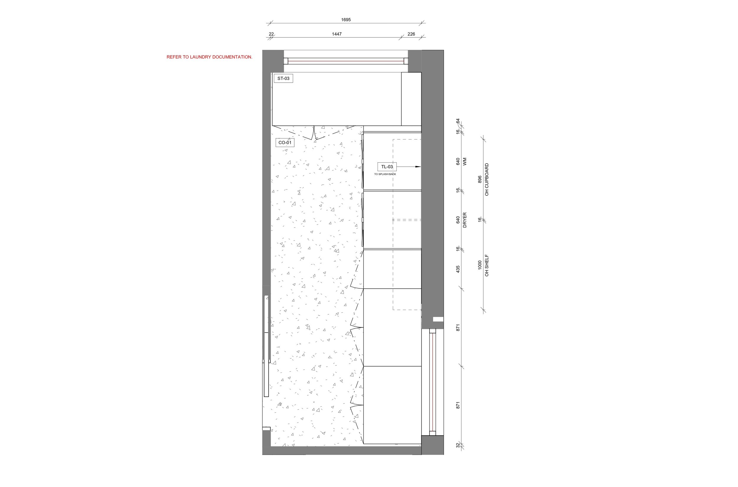
Designed for a contemporary new build in Sydney, this suite of joinery pieces was shaped around the architecture’s geometry, circulation and natural light. The kitchen island and bench were positioned to accentuate movement through the space, while the fireplace wall and bar were detailed to ground the living areas and strengthen visual continuity. The study nook was integrated into an unused pocket of the plan, transforming residual space into something intentional and calm. Every decision, materials, edges, shadow lines, proportions, was guided by the goal of letting the joinery belong to the architecture. The final documentation allowed the client to move confidently into fabrication and construction.


brisbane home renovation

2025

This project reconfigured the lower floor of a family home into a fully functional secondary living space, including a bathroom, bedroom, kitchenette, laundry and study/lounge. The design was guided by the clients’ desire for a grey and black tonal palette, especially in the bathroom, balanced by a sense of warmth and softness. Oak joinery became the anchor of the interior, bringing natural texture and gentle contrast to the darker surfaces. Through careful planning and material selection, the new level achieves a calm, contemporary feel while offering the flexibility and independence needed as the family expands.


hokkaido house

2025

In a snowy Hokkaido neighborhood, this home was crafted to offer a quiet sense of refuge, part sanctuary, part guest retreat. Working remotely across time zones, I collaborated with the client to curate an FF&E scheme sourced entirely from Japanese suppliers, ensuring every piece aligned with local availability, climate and the practicalities of Airbnb hosting. Natural materials, warm textures and layered lighting soften the architecture, while flexible sleeping configurations and resilient furniture choices support the home’s dual purpose. Each selection was made to feel intentional and grounded, creating a space that is soothing, functional and intimately connected to its setting.


japandi bedroom & bath Suite

2024

Located in the US, this project reimagined the bedroom, walk-in-robe and bathroom through a Japandi lens, calming colours, honest materials and an emphasis on warmth. A deep appreciation for green drove the material direction, culminating in the use of green quartzite as the key feature stone. Light oak joinery was introduced to soften the palette and tie the spaces together, bringing a gentle warmth to the cooler tones. The result is a cohesive, understated suite that feels grounded, tactile and highly considered.


gymea bay house

2025

Working alongside Profectus Design, this project began with establishing the interior foundation through early joinery studies, space-specific moodboards and a cohesive FF&E scheme that responds directly to the home’s architectural character. The process is ongoing, with upcoming stages expanding into detailed bathroom and kitchen design, deepening the connection between the interior palette, crafted joinery and the architecture’s form.


upstate new york rental property

2025

Designed for an Airbnb in Upstate New York, this project centred on creating an interior that feels authentic to the region while working within a modest budget. Collaborating closely with the client, the entire FF&E scheme was sourced locally, selecting pieces that were accessible, durable and well-suited to high guest turnover. The material direction took cues from the surrounding landscape, soft woods, layered neutrals and tactile textures—resulting in a space that feels warm, grounded and easy for guests to settle into. The home photographs beautifully while remaining practical and cost-conscious.

Next
Next

fabbrica apartments